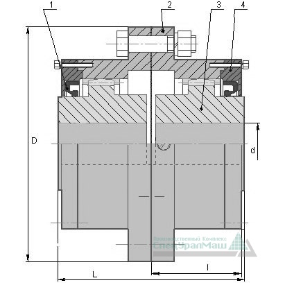
Муфта зубчатая типа МЗ состоит из двух зубчатых обойм (2), соединенных между собой призонными болтами, и двух зубчатых втулок (3) вставленных в обоймы. На обоймы устанавливаются крышки (4) с манжетами (1). Соединяемые зубчатой муфтой валы запрессовываются в отверстия зубчатых втулок, а зубья втулок входят в зацепление с зубьями обойм. Форма зуба втулок делает возможным их незначительное смещение в любых направлениях.
Муфты зубчатые МЗ и МЗП. Предназначены для передачи вращения от двигателя к валу, от одного вала к другому с допускаемым угловым смещением. Они используются в промышленном оборудовании самых разнообразных типов. К таким, например, относится конвейерное оборудование. Помимо передачи движения муфты зубчатые могут выполнять и другие задачи. Так, они служат для компенсации небольших монтажных отклонений, автоматического управления механизмом, а также выполняют некоторые предохранительные функции.
Муфты зубчатые
могут предавать и ничтожно малые, и весьма существенные мощности. Как правило, они используются в приводах мощностью свыше 75 киловатт.
Механическая связь муфты зубчатой
с другими деталями осуществляется геометрическим замыканием, что обеспечивает компактность устройства. Основные геометрические и силовые характеристики муфты зубчатойописаны в технических требованиях ГОСТ Р 50895-96.
Типоразмеры зубчатых муфт обусловлены габаритными размерами муфты и соединяющихся с ней деталей: МЗ-1, МЗ-2, МЗ-5, МЗ-6, МЗ-10 и т.д. Муфты, предназначенные для соединения валов через промежуточный вал, обозначаются:
